Tipps & Tricks
SOLIDWORKS: Mit dem theoretischen Eckpunkt vermaßen Wollten Sie auch schon mal einen Abstand zu einer Ecke bemaßen, die es durch das Anbringen eines Radius nicht mehr gibt? In der Skizze eines Bauteils ist dies kein Problem, da SOLIDWORKS hier beim Erstellen des Radius automatisch einen Eckpunkt erstellt, wo die Linien sich ursprünglich getroffen haben. In […]
05.11.24

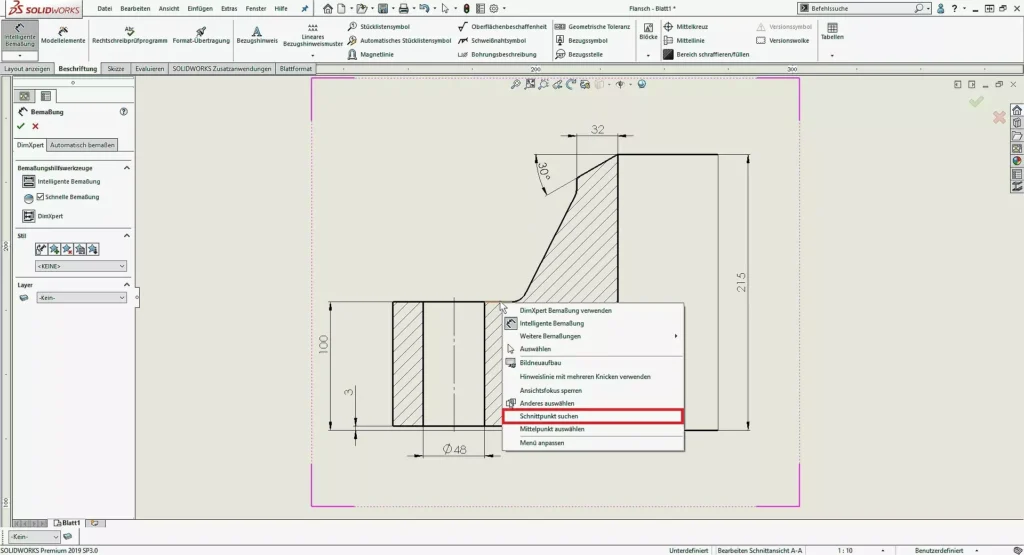
Wollten Sie auch schon mal einen Abstand zu einer Ecke bemaßen, die es durch das Anbringen eines Radius nicht mehr gibt? In der Skizze eines Bauteils ist dies kein Problem, da SOLIDWORKS hier beim Erstellen des Radius automatisch einen Eckpunkt erstellt, wo die Linien sich ursprünglich getroffen haben. In diesem Beitrag möchten wir Ihnen zeigen, wie Sie einen solchen „theoretischen Eckpunkt“ ganz einfach in Ihrer SOLIDWORKS Zeichnung bemaßen können, ohne umständlich mit selbst hinzugefügter Geometrie arbeiten zu müssen.
Starten Sie hierzu ganz einfach die intelligente Bemaßung, und klicken Sie zunächst mit der rechten Maustaste auf eine der beiden Linien die an den Radius angrenzen. Im Kontextmenü wählen Sie nun die Option „Schnittpunkt suchen“

Klicken Sie anschließend die Linie mit der ein gemeinsamer Schnittpunkt gesucht werden soll. SOLIDWORKS erstellt diesen nun automatisch, und hängt die Bemaßung auch sofort hier an.

Nun können Sie die nächste Bemaßungsreferenz (Punkt, Linie) anklicken, und die Bemaßung wie gewünscht platzieren.

Kategorien
Allgemein Neuigkeiten Ratgeber Tipps & Tricks
Zum Bechtle PLM News-Service anmelden.
Keine Neuigkeiten, Tipps & Tricks, Events u.v.m. rundum Engineering & Manufacturing mehr verpassen.
Wir sind hier, um Ihnen zu helfen! Schicken Sie uns Ihre Frage über das nebenstehende Formular.
Ihre Zufriedenheit hat oberste Priorität. Wenn Sie Informationen benötigen, Unklarheiten haben oder spezifische Anliegen besprechen möchten, zögern Sie nicht, uns zu kontaktieren. Füllen Sie einfach das Formular aus, wir werden uns schnellstmöglich bei Ihnen melden. Vielen Dank für Ihr Vertrauen!
Sie sehen gerade einen Platzhalterinhalt von Facebook. Um auf den eigentlichen Inhalt zuzugreifen, klicken Sie auf die Schaltfläche unten. Bitte beachten Sie, dass dabei Daten an Drittanbieter weitergegeben werden.
Mehr InformationenSie sehen gerade einen Platzhalterinhalt von Google Maps. Um auf den eigentlichen Inhalt zuzugreifen, klicken Sie auf die Schaltfläche unten. Bitte beachten Sie, dass dabei Daten an Drittanbieter weitergegeben werden.
Mehr Informationen